![]()
東住吉区桑津 新築賃貸マンション cys abeno east
JR環状線 寺田町駅 徒歩10分
近鉄南大阪線 河堀口駅 徒歩8分
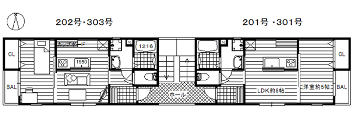
3階建て賃貸マンション2階〜3階 1LDK
オートロック、防犯カメラ、宅配BOX、 ゴミ出しは分別無しで月曜日〜土曜日(24時間)OK
分譲並みの充実した室内設備
追炊き機能、浴室乾燥暖房機付1216最新ユニットバス・3口IHクッキングヒーター、
食器洗乾燥機付きカウンターキッチン、カップボード・シャンプードレッサー・ウォシュレット
・WIFI、インターネット無料・エアコン・室内洗濯用物干し(パナソニックホシ姫サマ)
・LEDシーリング照明・玄関人感センサー照明・カラーモニター付きインターホン・玄関ダブルロック・大型シューズボックス・大型クローゼット・オートロック・防犯カメラ・宅配BOX・自転車置き場
ゴミ出しは分別無しで月曜日〜土曜日(24時間)OK

- ■専有面積 33.93㎡ 1LDK
■令和6年5月建築
■賃料 78,000円〜(税別)管理費 7,000円(税別)礼金 1ヵ月 







